Vissza

Eladó 160 m² Lakás Budapest, Orbánhegy területén – E49600

550 000 000 Ft
160 nm
alapterület
4
szoba
E49600
ingatlankód
TipusLakás
CímBudapest, Orbánhegy
FekvésZöldpanorámás
Lakótér mérete160 nm
Szobaszám4
Emeletfszt
Terasz mérete46 nm
FűtésLevegő-hőszivattyú
ÉpítőanyagTégla
ÁllagÚjszerű
Telek mérete2246
ParkolásGarázs
Ár550 000 000 Ft

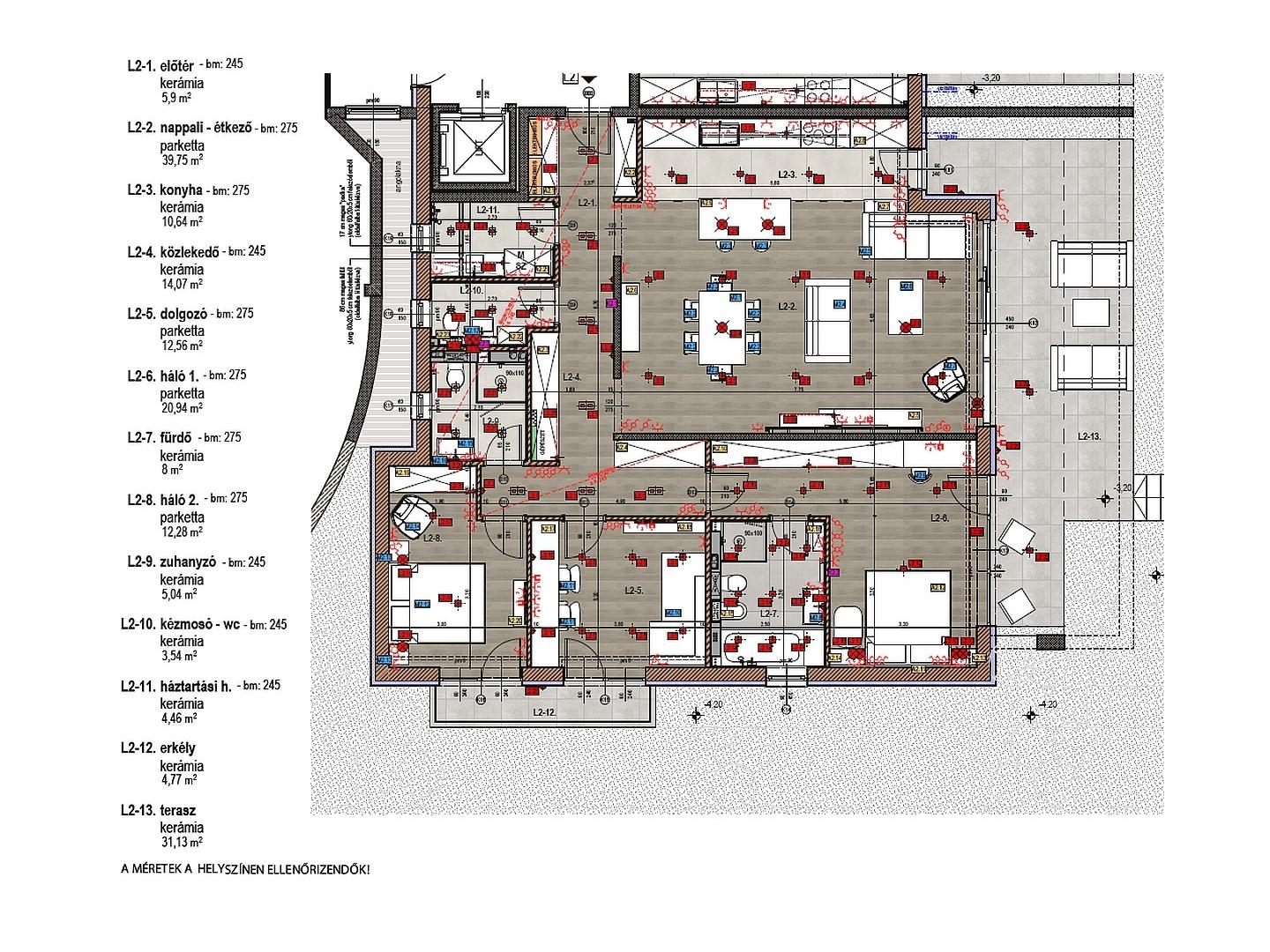
XII. kerület – Orbánhegy Újépítésű, luxus kivitelű földszinti lakás saját kerttel eladó! Budapest XII. kerületének egyik legszebb, legnyugodtabb részén, Orbánhegy zöldövezeti utcájában eladó egy különleges, minden részletében átgondolt, 160 m²hasznos alapterületű, újépítésű luxuslakás. A mindössze öt lakásos, liftes társasház földszintjén található ingatlanhoz egy közel 300 m²-es, gondozott, automata öntözőrendszerrel felszerelt saját kert és egy 46 m²-es, közvetlenül kapcsolódó terasz tartozik – igazi oázis a város szívében. A lakás belső tereiben a tágas, 50 m²-es amerikai konyhás nappali uralja a teret, amely a kertre néző, hatalmas üvegfelületeknek köszönhetően egész nap fényárban úszik. Két hálószoba, egy dolgozószoba, két elegáns fürdőszoba, háztartási helyiség és külön vendégmosdó teszi teljessé a funkcionalitást. A lakás műszaki tartalma a legmagasabb kategóriát képviseli: Panasonic hőszivattyús fűtés mennyezeti és padlófűtéssel, mennyezeti hűtés, hővisszanyerős szellőztető rendszer, háromrétegű fa nyílászárók, motoros alumínium redőnyök és teljes körű KNX épületautomatika gondoskodik a kényelemről és az energiahatékonyságról. A fürdőszobákban Villeroy&Boch szaniterek és Hansgrohe szerelvények, míg a konyhában teljes Miele gépsor található – sütő, gőzpároló, kávégép, főzőlap, mikrohullámú sütő, mosogatógép, hűtő és fagyasztó. A lakás teljesen berendezve eladó: Natuzzi ülőgarnitúra, Leolux bútorok, Bonaldo étkezőasztal, Rolf Benz dohányzóasztal, Jacaranda szőnyegek, MESH csillár és SLV lámpatestek teszik teljessé az enteriőrt. A lakáshoz kényelmes teremgarázs-beálló (15M Ft), felszíni parkoló (10M Ft), valamint két külön tároló (20M Ft). A társasház biztonságos, zárt rendszerű, automata garázs- és kertkapuval, riasztóval és videó kaputelefonnal felszerelt. A környék infrastruktúrája kifogástalan: a közeli buszmegállók (102, 112, 990) révén a belváros könnyen elérhető, ugyanakkor a lakás környezetét csend, zöld és kiváló levegő jellemzi. A közelben több elismert iskola, óvoda és bevásárlási lehetőség is található. Ez az ingatlan valóban ritka kombinációja a modern technológiának, a természet közelségének és a kimagasló esztétikai minőségnek – egy igazi luxus otthon, amely azonnal költözhető, és minden részletében készen áll arra, hogy egy új tulajdonos méltó otthonává váljon.

Közművek
VízVillanyGázCsatornaTVInternet
Van Van Van Van Van
Kapcsolatfelvétel
Kovács Ibolya
Iroda ElérHetőségek

1112 Budapest,
Cseresznye utca 56.
Telefon: 06 1 246 3991
Mobil: 06 70 456 1120

Nyitva: Hétfő-Péntek 9:00-17:00-ig

Referenciáink

Cordia Terrace
Madárhegy Lakópark
MOM lakópark
Sasad Liget
Madárterasz - Zöldotthonok
Buda Diamond Apartmanház

(C) 1992-2026 BH Ingatlan Kft. Minden jog fenntarta
uh.derbi@ygehsas :liam-E | Adatkezelési nyilatkozat | Weboldal készítés